E-mail

Pronájem Byt + terasa, sklep a garáž

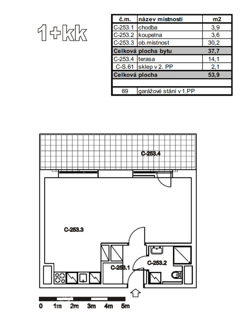
Máme pro Vás k dispozici pronájem hezkého bytu 1+kk, který lze dispozičně upravit na 2+kk (38m), s terasou směrovanou na východ (14m) ve 4 patře. Součástí pronájmu je kryté garážové stání v 1.PP + sklep (2,1m).

pronajato Pronájem Byt + terasa, sklep a garáž

Tato nemovitost už není bohužel v nabídce

Velikost

1+kk

Obytná plocha

54 m2

Umístění

centrum obce

Konstrukce budovy

smíšená

Vlastníctví

osobní

Počet podlaží

4

Podlaží

4

Máme pro Vás k dispozici pronájem hezkého bytu 1+kk, který lze dispozičně upravit na 2+kk (38m), s terasou směrovanou na východ (14m) ve 4 patře. Součástí pronájmu je kryté garážové stání v 1.PP + sklep (2,1m).
Byt je v novostabě s garážemi z roku 2011 v Letňanech. K dispozici máte pokoj s vestavěnou skříní, kuchyňskou linkou (varná deska a vestavěná trouba), lednicí a pračku, WC a sprchový kout.
Nájem činí 14.900,-/m + poplatky 3.000,-/m a energie se převádí na nájemníka (cca 890,-). Kauce je ve výši 18.000,-.
Jde o klidnou lokalitu s výbornou dostupností MHD do 200 metrů, na metru jste za 10 minut. U domu jsou potraviny, dětské hřiště a v blízkém okolí se nachází Aqua park, OC Letňany, tělocvična, kulturní centrum…číst více  

Máme pro Vás k dispozici pronájem hezkého bytu 1+kk, který lze dispozičně upravit na 2+kk (38m), s terasou směrovanou na východ (14m) ve 4 patře. Součástí pronájmu je kryté garážové stání v 1.PP + sklep (2,1m).
Byt je v novostabě s garážemi z roku 2011 v Letňanech. K dispozici máte pokoj s vestavěnou skříní, kuchyňskou linkou (varná deska a vestavěná trouba), lednicí a pračku, WC a sprchový kout.
Nájem činí 14.900,-/m + poplatky 3.000,-/m a energie se převádí na nájemníka (cca 890,-). Kauce je ve výši 18.000,-.
Jde o klidnou lokalitu s výbornou dostupností MHD do 200 metrů, na metru jste za 10 minut. U domu jsou potraviny, dětské hřiště a v blízkém okolí se nachází Aqua park, OC Letňany, tělocvična, kulturní centrum ZŠ a další občanská vybavenost.
Byt je vhodný pro max. 2 osoby. V případě otázek a dojednání prohlídky mě neváhejte kontaktovat.
V případě více zájemců rozhoduje nejvyšší nabídka.

Obytná plocha 54 m2
Počet NP 4
Podlaží 4
Název obce Praha, Letňany
Vlastníctví osobní
Velikost 1+kk
Konstrukce budovy smíšená
Zobrazit více fotografií